PROJECTS

With over 300 happy families in our list at successful customers and with 10 years at experience in handling building contract works, Thejus Homes has been established as one at the leading firm in the construction sector. Our firm is specialized in “Vasthu Shastra”, which integrates Architecture with Nature and Ancient Indian Beliefs, utilising perfect Geometric patterns symmetry and directional alignments.

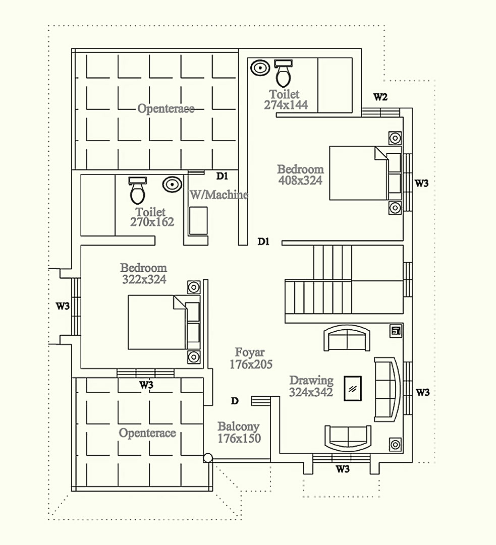
Presently we are working on our Villa Project “SAOUHRIDHAM” at Nettoor near Maradu, Kochi. Which is in its post completion stage and is ready to occupy.

  • FOUNDATION

    Recommended as per Structure Engineer [R C C Footing Foundation]

  • STRUCTURAL

    Proper foundation and load bearing structure , brick work for walls.

  • FLOORING

    High quality 60x 60 cm Vitrified flooring. Glazed wall tiles in bathrooms up to 210 level-Antiskid Ceramic flooring in bathroom.

  • BATHROOM FITTING

    CERA Branded fittings. WINDOWS AND DOORS Main door ,Inside door frame and windows finished with Pincoda [Cheru Teak] wood. Inside bedroom door finished with skin pressed painted door.

  • PAINTING

    Internal Walls – Acrylic Emulsion with putti finish Ceiling – Emulsion with putti finish External - Weather coat paint

  • ELECTRICAL

    Wires – Finolex or equivalent Switches – All switches are modular Telephone – Provision for Telephone and cable TV Master Bedroom – AC and Master control switch

  • PLUMBING AND SANITATION

    CP and Sanitory fittings. All bathroom CERA and Equivalent

  • KITCHEN

    Modular cupboard work for kitchen and work area. Granite Kitchen and work area counter top with ceramic tile, Dado up to 2feet.Stainless steel sink with drain . Bore well water

  • WATER SUPPLY

    Storage capacity KWA [5000 Ltr.]

  • STAIRCASE

    Stainless steel hand rail and Vitrified tile flooring

Sauohridham@Nettor Development Process Gallery

Thejus Homes is a professional building firm, that is committed to serve its customers with superior workmanship, quality components and contemporary designs. In an ever changing construction scenario, we make designs, that adopt itself to the latest trends at affordable price without compromising the quality of work. In our daily work we strive to attain our god given potential to the fullest and above all try out best to represent the interest of our customers.